Thiết Kế & Cải Tạo Biệt Thự Vinhomes Thăng Long – Nam An Khánh
Công trình: Thiết kế – cải tạo biệt thự
Địa điểm: Khu đô thị Vinhomes Thăng Long – Hà Nội
Hạng mục chính: Cải tạo cầu thang – Lắp thang máy – Chia lại không gian phòng ngủ – Thiết kế nội thất
Tổng quan công trình
Biệt thự tại Vinhomes Thăng Long được cải tạo nhằm nâng cấp toàn diện không gian sống, đáp ứng nhu cầu sinh hoạt tiện nghi cho gia đình nhiều thế hệ. Trọng tâm của dự án là phá dỡ cầu thang bộ hiện trạng, cải tạo lại khu vực cầu thang để lắp đặt thang máy, đồng thời tái cấu trúc không gian các phòng ngủ và thiết kế nội thất đồng bộ cho phòng khách, bếp và phòng ngủ.
Toàn bộ phương án cải tạo được nghiên cứu kỹ lưỡng để giữ nguyên kết cấu chính, đảm bảo an toàn kỹ thuật và tuân thủ các quy định của Ban Quản Lý khu đô thị.
Nội dung cải tạo chính
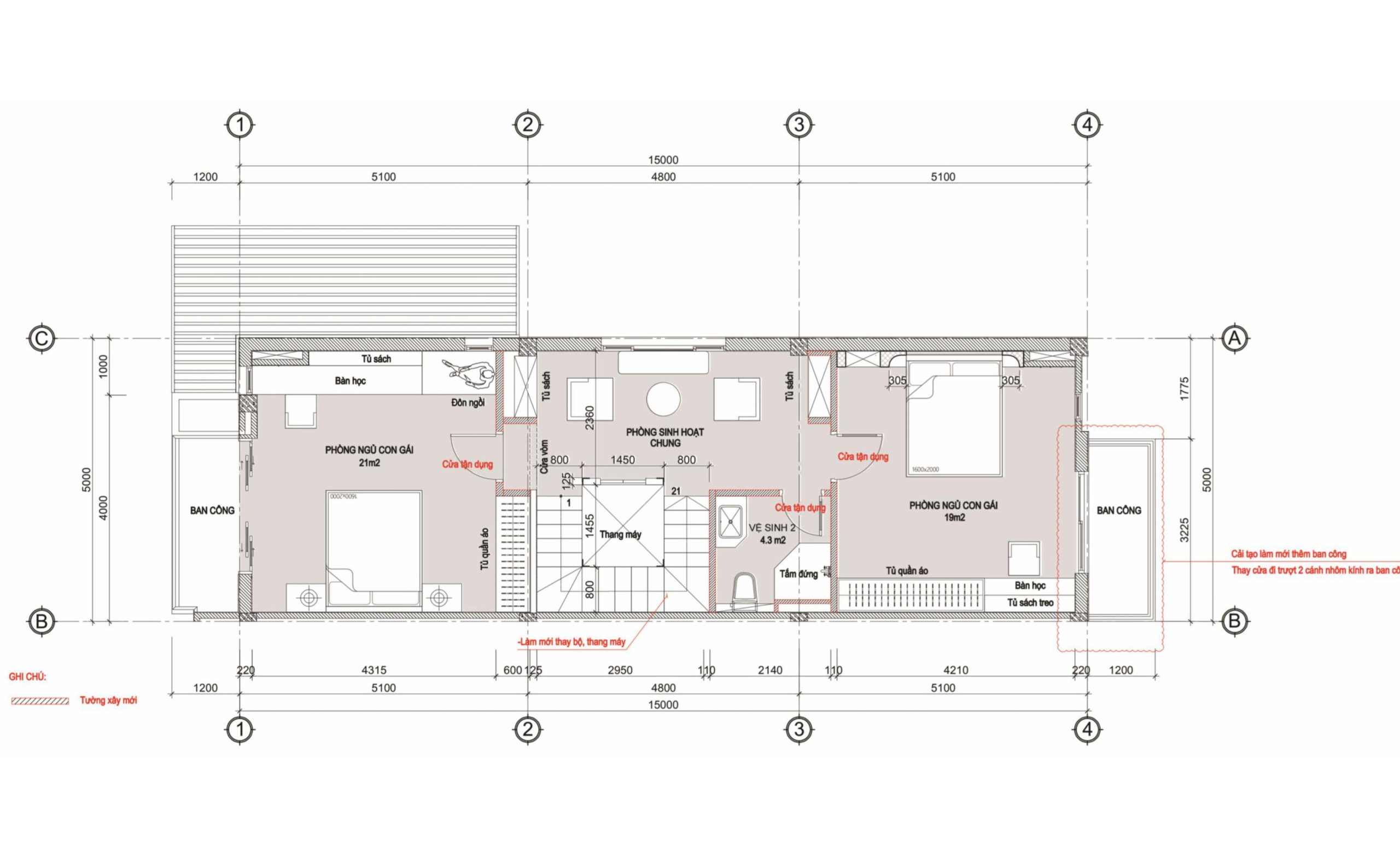
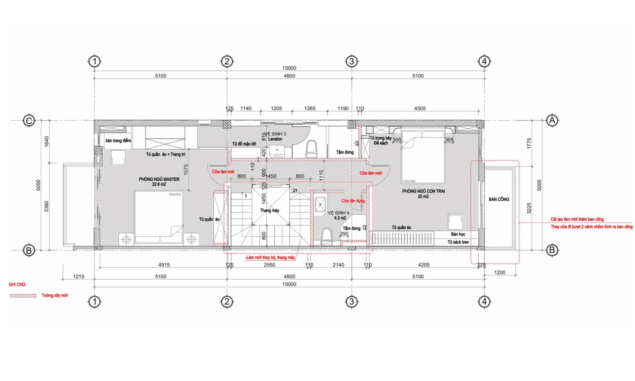
1. Phá dỡ cầu thang bộ cũ – cải tạo cầu thang lắp thang máy
-
Khảo sát hiện trạng kết cấu khu vực cầu thang trước khi thi công.
-
Phá dỡ cầu thang bộ cũ có kiểm soát, đảm bảo an toàn cho các kết cấu xung quanh.
-
Thiết kế lại khu vực cầu thang, bố trí hố thang máy phù hợp với mặt bằng biệt thự.
-
Gia cố sàn, dầm, tường tại vị trí lắp thang máy.
-
Lắp đặt thang máy gia đình, tối ưu:
-
Khả năng di chuyển giữa các tầng
-
An toàn sử dụng
-
Tính thẩm mỹ và sự hài hòa với không gian nội thất
-
Việc cải tạo cầu thang và lắp thang máy giúp công trình nâng cao đáng kể tiện nghi sinh hoạt và giá trị sử dụng lâu dài.




2. Chia lại không gian các phòng ngủ
-
Rà soát lại mặt bằng công năng hiện trạng các tầng.
-
Chia lại diện tích và bố cục các phòng ngủ để:
-
Tăng sự riêng tư
-
Tối ưu diện tích sử dụng
-
Phù hợp nhu cầu từng thành viên trong gia đình
-
-
Bố trí lại cửa đi, cửa sổ, tủ âm tường và khu vực sinh hoạt trong phòng.
Các phòng ngủ sau cải tạo có công năng hợp lý hơn, thuận tiện sinh hoạt và dễ dàng bố trí nội thất.






3. Thiết kế nội thất phòng khách – bếp – phòng ngủ
DG Home thực hiện thiết kế nội thất đồng bộ cho toàn bộ không gian chính của biệt thự:
-
Phòng khách
-
Thiết kế theo phong cách hiện đại, sang trọng.
-
Tối ưu ánh sáng tự nhiên và bố cục giao thông.
-
Nội thất lựa chọn theo tiêu chí bền – đẹp – phù hợp tổng thể biệt thự.

-

-

-

-

-
-
Khu vực bếp
-
Sắp xếp lại không gian bếp và bàn ăn khoa học.
-
Tối ưu công năng sử dụng, lưu trữ và vệ sinh.
-
Đảm bảo thông thoáng và tiện lợi khi sử dụng hàng ngày.
-




-
Phòng ngủ
-
Thiết kế nội thất theo từng đối tượng sử dụng (người lớn, trẻ em, người cao tuổi).
-
Màu sắc, vật liệu và ánh sáng được lựa chọn để tạo cảm giác thư giãn.
-
Đồng bộ với phong cách chung của toàn bộ công trình.
-
Giải pháp thiết kế & thi công
Trong suốt quá trình cải tạo, DG Home chú trọng:
-
Can thiệp kết cấu đúng kỹ thuật, an toàn tuyệt đối
-
Thiết kế – thi công đồng bộ từ kiến trúc đến nội thất
-
Kiểm soát tiến độ và chất lượng từng hạng mục
-
Hạn chế tối đa ảnh hưởng đến các không gian xung quanh
Kết quả đạt được
Sau khi hoàn thiện:
-
Biệt thự được nâng cấp toàn diện về công năng và thẩm mỹ
-
Việc di chuyển giữa các tầng trở nên thuận tiện với thang máy gia đình
-
Không gian phòng ngủ, phòng khách và bếp được bố trí khoa học, hiện đại
-
Gia tăng giá trị sử dụng và giá trị bất động sản của căn biệt thự
DG Home – Đơn vị thiết kế & cải tạo biệt thự uy tín
Chuyên:
-
Thiết kế – cải tạo biệt thự
-
Thiết kế và thi công nội thất trọn gói
Chúng tôi cam kết giải pháp phù hợp – thi công chuẩn kỹ thuật – chi phí minh bạch cho từng công trình.
Công ty CP Thương Mại và Dịch Vụ Xây Dựng DG Home
VPGD: 18TT9, Khu đô thị Kiến Hưng Luxury, Kiến Hưng, Hà Nội
Hotline: 086.81.81.068
Tư vấn KT: 097.4567.715

